Интерьер ГЕОМЕТРИЯ И ОТТЕНКИ МЯТЫ

 

Заказчик: частное лицо

Место: Россия, Екатеринбург

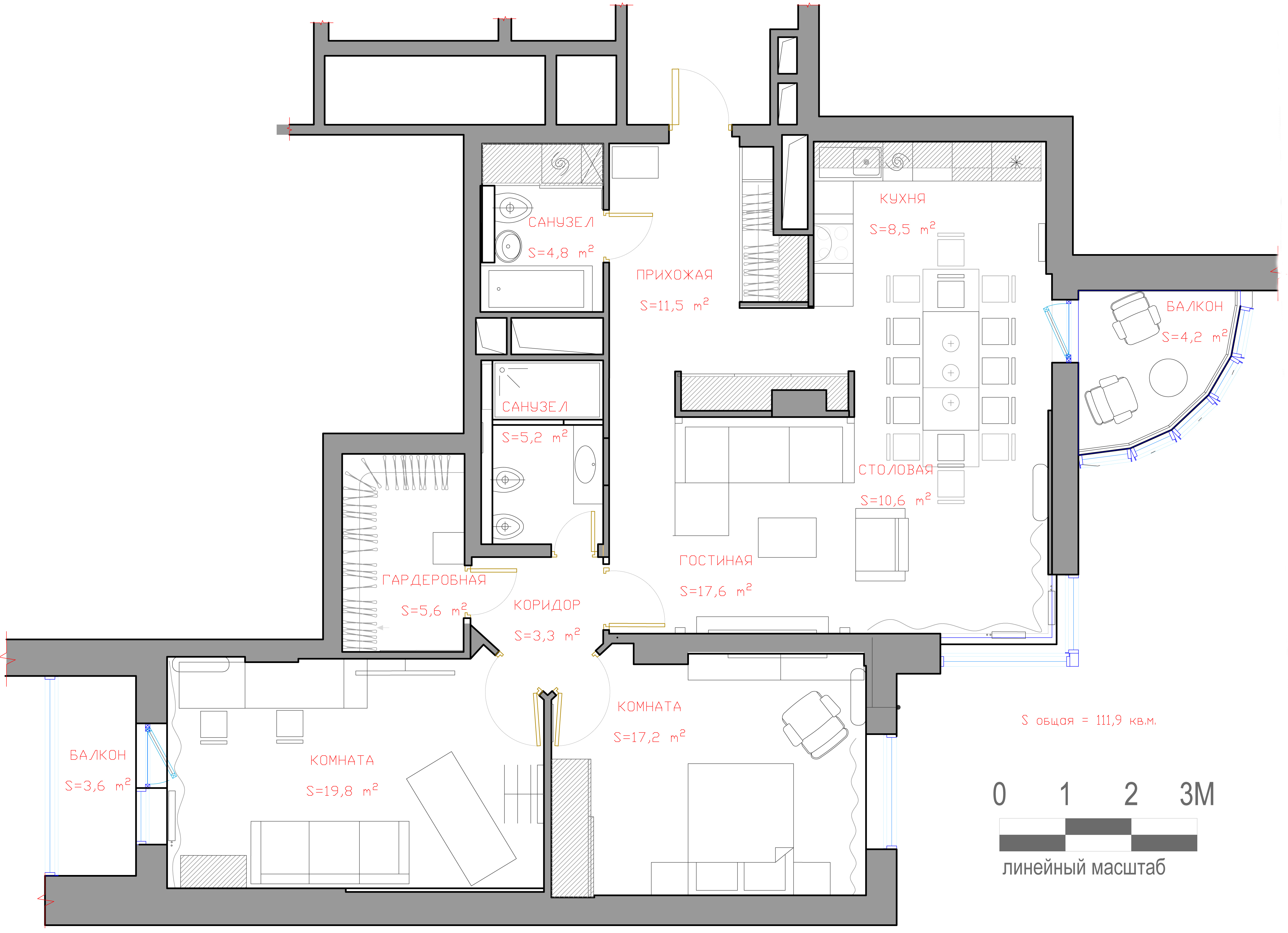
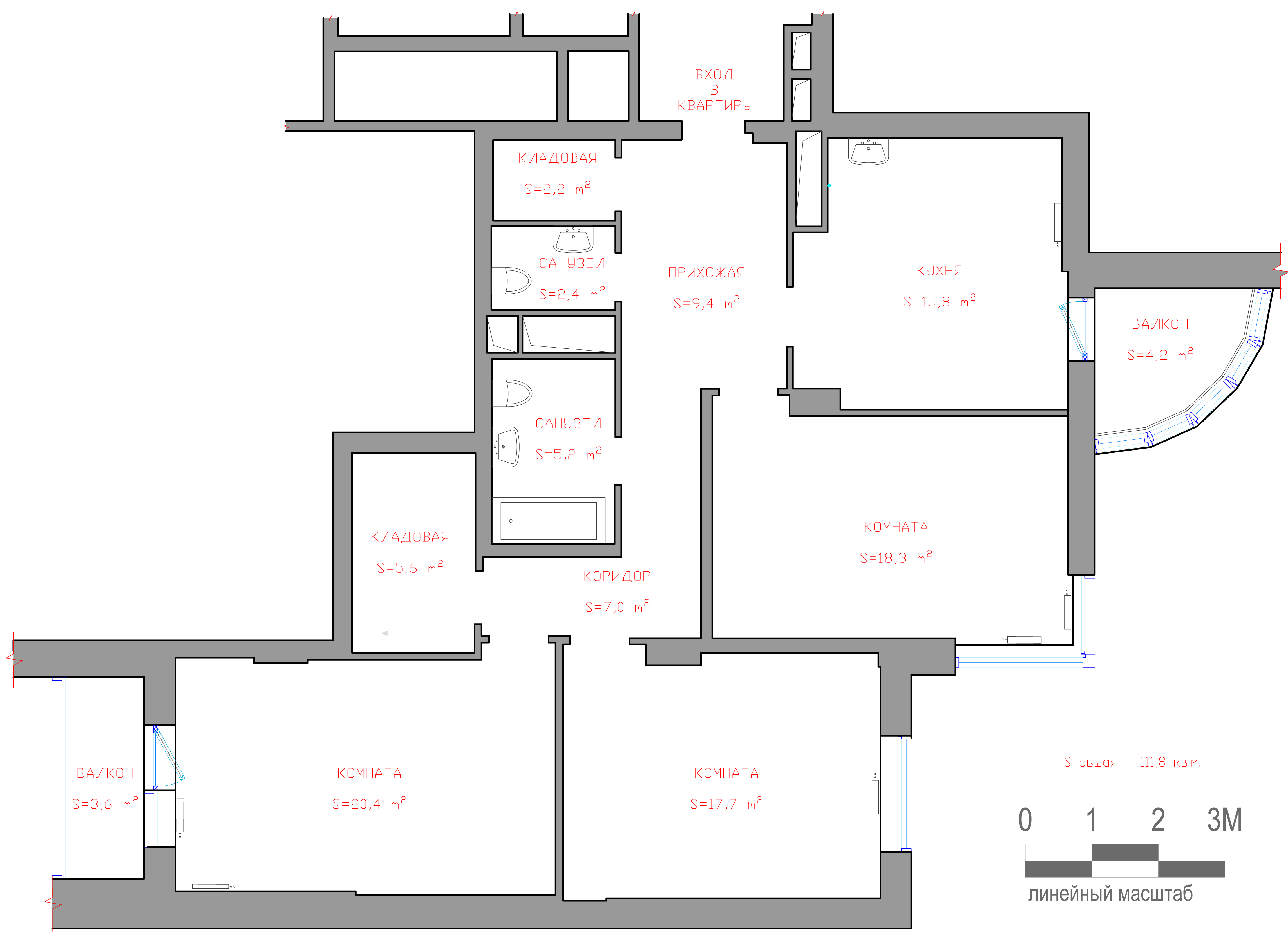
Общая площадь: 111,8 кв. м.

Проектирование и строительство: 2015-17

Статус: реализован

Выполненные работы: дизайн-концепция, планировочное решение, 3D визуализация, рабочий проект, авторский надзор включая подбор материалов и оборудования

Команда: Е. Кропанева, В. Злоказов

Фотограф: Аскар Кабжан

Интерьер для молодой семейной пары спроектирован с максимальной функциональностью и практичностью таким образом, что на первый план выходят пропорции геометрических форм и оттенки. Геометрия и цвет — основные выразительные средства в этом проекте, тогда как остальные аспекты интерьера (например, материалы и фактуры) подчиняются прежде всего принципам функциональности и практичности. Цвет раскрывается на матовых окрашенных поверхностях мебели, в покраске стен и в обивке мягкой мебели. Цветовая палитра интерьера выдержана в родственных тонах голубого и синего вместе с нейтральными белыми, ванильными и теплыми серыми тонами. Родственная цветовая гамма позволяет играть с разной насыщенностью: центром цветовой композиции становятся три «мятных» оттенка, использованных на фасадах кухни и многофункционального шкафа. Фоном для них становятся более приглушенные и тёмные тона.

В проекте особое внимание было уделено сценарию освещения и расположению электроустановочных изделий. Розетки и выключатели белого цвета и гармоничных пропорций Schneider Electric серии Unica во всех помещениях объединяют разные материалы, цвета и фактуры, где-то выделяясь на контрастном фоне и подчеркивая функциональность и минимализм интерьера, а где-то визуально растворяясь на поверхности белых стен. Освещение вариативное с возможностью создания разной степени освещенности и выделения разных зон. Так, светильники в зоне гостиной диммируются, а в кухне предусмотрен как сценарий максимальной освещенности, так и эффектная подсветка отдельных функциональных зон в зависимости от того, как используют пространство. Для удобства выключатели светильников в зоне прихожей — проходные. При дневном свете геометрическая форма светильников и их расположение на потолке и стене задают ритм.

В интерьере помимо общего пространства гостиной, кухни/столовой и прихожей  выделена приватная зона с возможностью создания максимальной изолированности. Общую и приватную зоны разделяют две двери. «Дверь-невидимка» в гостиной ведет в минимальный по площади, но удобный холл-буфер, из которого можно попасть в спальню, в кабинет, в гардеробную и в главный санузел. Таким образом, приватная жизнь хозяев квартиры может быть безболезненно совмещена с присутствием гостей в общей зоне.

 

При проектировании спальни стояла задача максимально следовать функциональности, не теряя при этом атмосферу легкости. Стены спальни, смежные с общей зоной, звукоизолированы. В кабинете помимо рабочих столов планируется поставить беговую дорожку.

 

Изначально квартира имела длинный, узкий коридор в который выходили 3 комнаты и кухня. По желанию заказчиков мы сделали перепланировку таким образом, чтобы избавиться от отдельного коридора и дверей между кухней и гостиной. В новой планировке на стыке зоны гостиной и кухни появилась зона столовой, организовано вместительное хранение: большой шкаф, как мини-гардеробная при входе, и многофункциональный шкаф-стена, который одновременно и зонирует пространство, и является центром цветовой и объемной композиции в интерьере. Местоположение шкафа-стены продиктовано положением несущей колонны в доме с монолитными конструкциями. Кроме функций разделения, хранения и композиционного акцента шкаф-стена обеспечивает возможность устройства домашнего кинотеатра (системы 5.1).

 

 

Некоторые эскизы и визуализации проекта