Дом в голландском стиле

 

Заказчик: частное лицо

Место: Россия, Свердловская область, Белоярский район

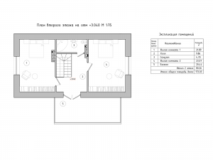
Общая площадь: 173 кв. м.

Проектирование: 2018

Статус: в разработке

Выполненные работы: дизайн-концепция, планировочное решение, 3D визуализация, рабочий проект.

Команда: Е. Кропанева, В. Злоказов, А. Ахмеров

Загородные дома в России, как правило, делятся на две категории: дорогие, где заказчик мог себе позволить услуги архитектора и недорогие, которые рисуются на тетрадном листке, а потом додумываются по ходу дела всеми участниками стройки, — со всеми вытекающими последствиями по части архитектурного облика и эргономики.

Мы в LATOON не согласны с такой ситуацией. Мы считаем, что небольшой экономичный коттедж может и должен быть красивым. Взяв за основу английский и голландский кирпичные стили мы разработали проект небольшого дачного дома для одного из наших клиентов.

Добавить комментарий

Ваш адрес email не будет опубликован. Обязательные поля помечены *