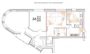
Интерьер квартиры ЗОЛОТОЙ МАРЦИПАН

 

Заказчик: AVS-development

Место: Россия, г. Екатеринбург

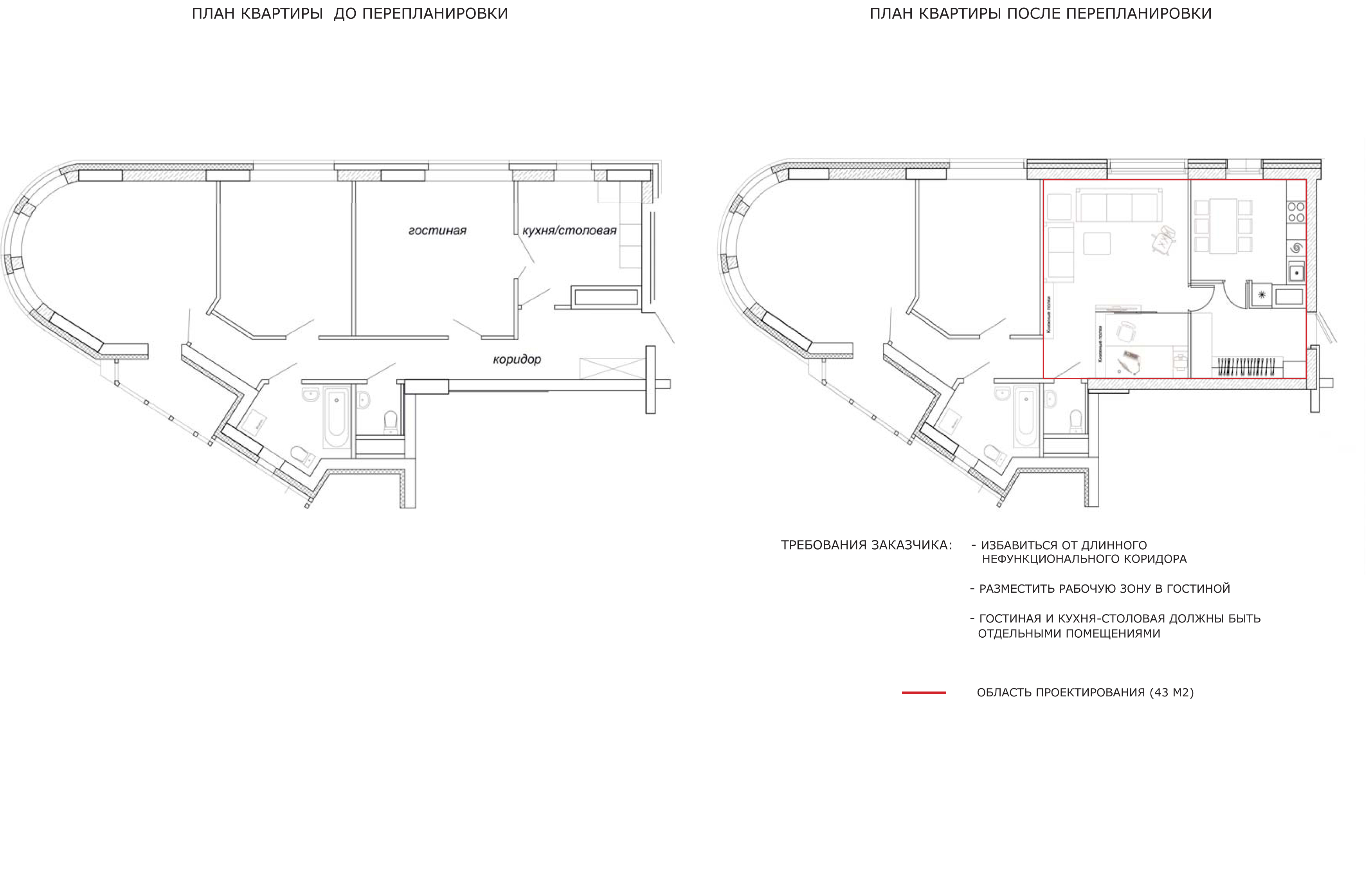
Общая площадь: 39 кв. м.

Проектирование: 2015

Статус: проект

Выполненные работы: планировочное решение, 3D визуализация

Команда: Е. Кропанева, Л. Рогозина